Sommelsdijk – Elise van Calcarhof 2
3245 LV, Sommelsdijk
€ 1.187.500,- k.k.
WoonhuisOmschrijving
Aan de rand van Sommelsdijk wordt u deze prachtige villa, gelegen aan het water, aangeboden. De villa beschikt over een ruime woon/-eetkamer, een mooie keuken, een slaapkamer en een badkamer op de begane grond. Op de eerste verdieping zijn drie slaapkamers en een tweede badkamer. De royale, fraaie tuin, grenzend...
Aan de rand van Sommelsdijk wordt u deze prachtige villa, gelegen aan het water, aangeboden. De villa beschikt over een ruime woon/-eetkamer, een mooie keuken, een slaapkamer en een badkamer op de begane grond. Op de eerste verdieping zijn drie slaapkamers en een tweede badkamer. De royale, fraaie tuin, grenzend aan het water, is rondom de villa gelegen.
INDELING
Begane grond:
De entreehal, met trapopgang en toilet, geeft toegang tot de ruime woon-/eetkamer. De ruime woonkamer is voorzien van een sfeervolle houtkachel en keramische tegels met vloerverwarming. De grote raampartijen zorgen voor veel natuurlijke lichtinval. In het verlengde van de woonkamer is de eetkamer gesitueerd, met openslaande deuren naar het terras. Vanuit de eetkamer heeft u toegang tot de open keuken. De keuken is voorzien van veel opbergruimte en diverse apparatuur: kookplaat, afzuigkap, oven, koelkast, vaatwasser en Quooker. Aan de achterzijde van de keuken is een hal bereikbaar die toegang geeft tot de bijkeuken en de slaapkamer. In de bijkeuken vindt u een keukenblok met spoelbak, de witgoedaansluitingen, de warmtepomp installatie en de deur naar de tuin. De royale slaapkamer is voorzien van keramische vloertegels met vloerverwarming. Vanuit de slaapkamer heeft u toegang tot de royale badkamer. De grotendeels betegelde, moderne badkamer is voorzien van een inloopdouche, een wastafel met meubel, een toilet, een designradiator, inbouwspots en vloerverwarming.
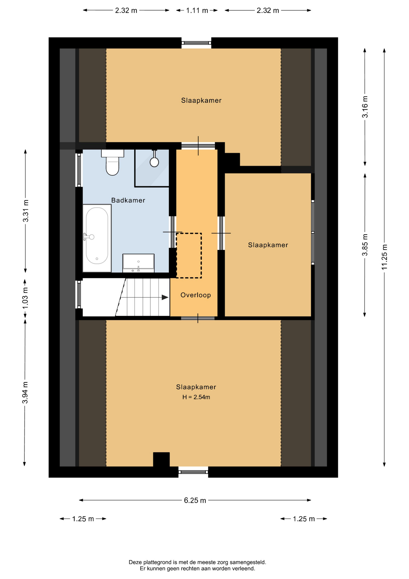
Eerste verdieping:
De overloop geeft toegang tot de overige drie slaapkamers en de tweede badkamer. De ruime slaapkamers zijn voorzien van een laminaatvloer met vloerverwarming. De geheel betegelde badkamer is voorzien van een ligbad, een douche, een wastafel en een toilet.
Vliering:
De vliering is vanaf de overloop bereikbaar middels een vlizotrap.
Tuin & schuur:
De royale, fraaie tuin is rondom de villa gelegen. Direct achter de woning is de overkapping gesitueerd. De achtertuin, gelegen op het zuidwesten, is voorzien van bestrating, ruimte voor diverse zithoekjes, een groot gazon en mooie borders met allerlei planten, struiken en bomen. Het is hier heerlijk vertoeven. Er loopt een pad naar de achterzijde van het perceel. Via een trap heeft u toegang tot het water. Genieten aan of op het water, het is hier mogelijk!
Links van de woning is de oprit naar de carport. Op de oprit is ruim voldoende parkeergelegenheid voor meerdere auto’s. Aangrenzend aan de carport is de schuur gelegen. Achter de schuur staat een berging/houthok.
Bijzonderheden:
– Oplevering: in overleg
– Prachtige villa aan het water
– Vloerverwarming in de gehele woning
– Warmtepomp en WTW
– Royale, fraaie tuin rondom gelegen
– 30 zonnepanelen
– Glasvezel internet
WoonhuisKenmerken
Overdracht
Bouwvorm
Indeling
Energie
Ik heb interesseNeem contact met mij op
Als u hier uw gegevens achterlaat, dan nemen wij contact met u op om u meer te vertellen over deze woning.
Inside information
Ik kan u alles over deze woning vertellen
Bel Albert op
06 30 57 19 38


