Dirksland – Irenelaan 4

3247 AG, Dirksland

€ 750.000,- k.k.

WoonhuisOmschrijving

Deze vrijstaande woning met garage is gelegen in een rustige wijk in Dirksland, op een perceel van 608 m². De woning beschikt naast de woonkamer en de keuken ook over een kantoor en een bijkeuken op de begane grond. Op de eerste en tweede verdieping zijn totaal zes slaapkamers gelegen...

Deze vrijstaande woning met garage is gelegen in een rustige wijk in Dirksland, op een perceel van 608 m². De woning beschikt naast de woonkamer en de keuken ook over een kantoor en een bijkeuken op de begane grond. Op de eerste en tweede verdieping zijn totaal zes slaapkamers gelegen en de badkamer. De eigen oprit en de verzorgde tuin maken deze woning extra aantrekkelijk.

INDELING
Begane grond:
Middels de entree kom je in de hal, met meterkast en toilet. Deze hal geeft toegang tot het aan de voorzijde gelegen kantoor en de woonkamer. De doorzonwoonkamer heeft een gezellige open haard en veel lichtinval. De keuken is voorzien van diverse inbouwapparatuur, zoals kookplaat, afzuigkap, oven, koelkast en vaatwasser. Via de keuken zijn de bijkeuken en berging te bereiken. In deze berging is de CV-ketel geplaatst. Vanuit de bijkeuken (voorzien van witgoedaansluitingen) kun je de garage en achtertuin betreden.

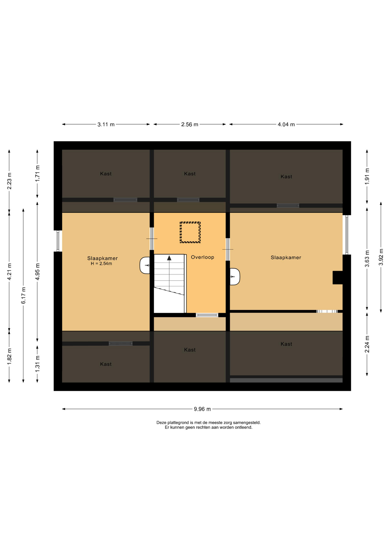
Eerste verdieping:
De royale overloop geeft toegang tot alle vertrekken op de eerste verdieping. Dit zijn vier slaapkamers, de badkamer en ook het aan de voorzijde gelegen balkon. De slaapkamers beschikken allemaal over een inbouwkast. De badkamer is voorzien van vloerverwarming, een ligbad, een toilet en een wastafelmeubel.

Tweede verdieping:
Naast de twee slaapkamers op zolder is er ook veel opbergruimte, achter de schotten, maar ook in kasten. Het Velux dakraam zorgt voor extra daglicht, naast de bestaande raampartijen.

Tuin & Bergingen:
Links naast de woning is een brede oprit, welke voldoende parkeergelegenheid biedt voor je auto(‘s). De tuin is netjes onderhouden en voorzien van bestrating, beplanting en achter de woning ook gazon. In de achtertuin staat een houten blokhut. De tuin is royaal, waardoor er altijd een schaduwrijk, maar ook een zonnig plekje te vinden is.

Bijzonderheden:
– Oplevering in overleg
– Ruime oprit en garage
– Netjes onderhouden
– Kantoorruimte op de begane grond

WoonhuisKenmerken

Overdracht

Status
Verkocht
Koopprijs
€ 750.000,- k.k.
Aanvaarding
In overleg

Bouwvorm

Objecttype
Woonhuis
Soort
Eengezinswoning
Type
Vrijstaande woning
Bouwjaar
1966
Bouwvorm
Bestaande bouw
Liggingen
Aan rustige weg, In woonwijk

Indeling

Woonoppervlakte
220 m2
Perceel oppervlakte
608 m2
Totale kadestrale oppervlakte
608 m2
Gebruiksoppervlakte overige functies
24 m2
Inhoud
857 m3
Aantal kamers
8
Aantal slaapkamers
6

Energie

Energieklasse
C
Energielabel einddatum
19 november 2034
Isolatievormen
Dakisolatie, Muurisolatie, Vloerisolatie, Dubbelglas
Soorten warm water
CV ketel
Soorten verwarming
CV ketel, Vloerverwarming gedeeltelijk
CV ketel type
Nefit
CV ketel bouwjaar
2017
CV ketel combiketel
Ja
CV ketel brandstof
Gas
CV ketel eigendom
Eigendom

Ik heb interesseNeem contact met mij op

Als u hier uw gegevens achterlaat, dan nemen wij contact met u op om u meer te vertellen over deze woning.

    Contactgegevens

    Naam*

    Mobiel

    E-mailadres*

    Inside information

    Ik kan u alles over deze woning vertellen

    Bel Jaap op
    06 27 00 82 66