Achthuizen – Zandweg 10

3256 BC, Achthuizen

€ 1.065.000,- k.k.

WoonhuisOmschrijving

Welkom in deze prachtige vrijstaande villa! Ontsnap aan de drukte en beleef het ultieme woongenot in deze landelijk gelegen woning. Gelegen op een rustige plek met een schitterend uitzicht, biedt deze villa de perfecte combinatie van landelijke charme en modern comfort. Ideaal voor wie privacy, rust en ontspanning zoekt. De...

Welkom in deze prachtige vrijstaande villa! Ontsnap aan de drukte en beleef het ultieme woongenot in deze landelijk gelegen woning. Gelegen op een rustige plek met een schitterend uitzicht, biedt deze villa de perfecte combinatie van landelijke charme en modern comfort. Ideaal voor wie privacy, rust en ontspanning zoekt. De in 2021 gebouwde woning is omringd door een goed onderhouden tuin met zwembad, en het sfeervolle interieur is voorzien van duurzame voorzieningen zoals een warmtepomp en een warmteterugwinningssysteem.

INDELING
Welkom aan de Zandweg 10 in Achthuizen, een exclusieve vrijstaande villa waar rust, ruimte en comfort samenkomen in een aantrekkelijk totaalconcept. Hier woont u landelijk, met een gevoel van vrijheid en privacy, terwijl u geniet van modern wooncomfort en een hoogwaardige afwerking.

Stijlvol wonen met allure
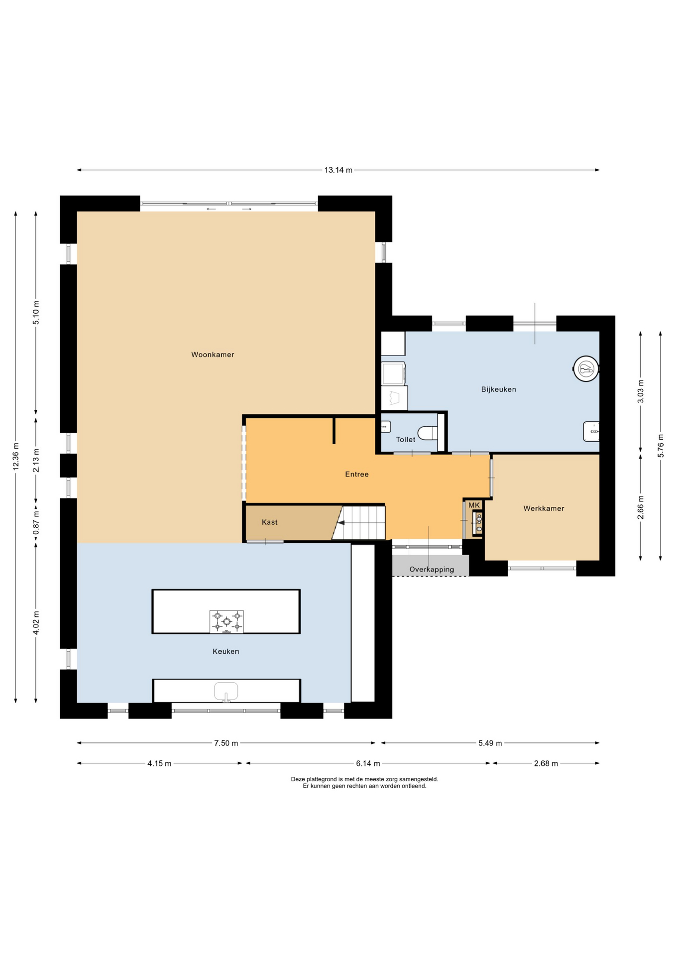
Bij aankomst valt direct de royale opzet op. De ruime oprit en verzorgde voortuin geven deze woning een representatieve uitstraling. Binnen wordt u ontvangen in een lichte entreehal die toegang biedt tot alle vertrekken. De woonkamer met open keuken vormt het centrale leefgebied, een plek waar licht en ruimte elkaar versterken. Grote raampartijen en de schuifpui zorgen voor een natuurlijke verbinding met de tuin en het zwembad, waardoor binnen en buiten in harmonie samenkomen.

De luxe open keuken met kookeiland is uitgevoerd met hoogwaardige apparatuur en een strak design. Hier bereidt u moeiteloos zowel dagelijkse maaltijden als uitgebreide diners, terwijl u in contact blijft met uw gezelschap.

Praktisch en toekomstgericht
De begane grond beschikt over een functionele bijkeuken en een volwaardige werkkamer. Ideaal voor thuiswerken of een eigen praktijkruimte. De gehele verdieping is voorzien van comfortabele vloerverwarming. Dankzij de aanwezigheid van een warmtepomp en warmteterugwinningssysteem is de woning bovendien energiezuinig en klaar voor de toekomst.

Comfortabele verdieping met luxe badkamer
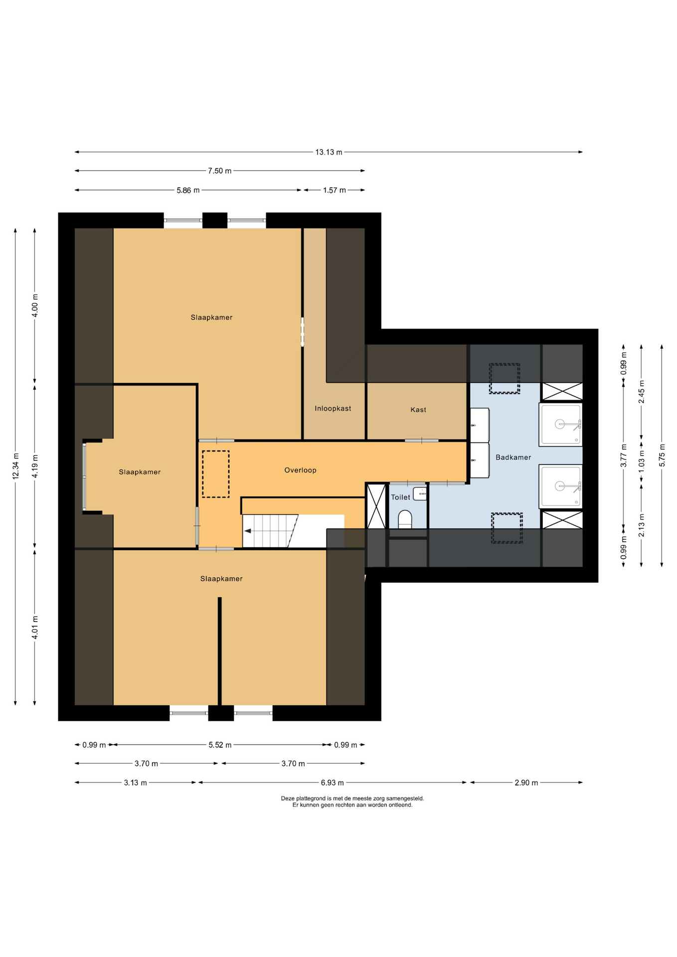
Op de eerste verdieping bevinden zich drie slaapkamers. De master bedroom met inloopkast biedt een gevoel van luxe en rust. De badkamer is stijlvol ingericht en voorzien van dubbele regendouches, een dubbele wastafel met meubel en vloerverwarming. Een separate toiletruimte verhoogt het dagelijks comfort.

Buitenleven op topniveau
De zonnige achtertuin op het zuiden vormt een ware eyecatcher. Hier geniet u in alle privacy van een fraai aangelegd terras en een uitnodigend zwembad. De luxe overkapping met elektrisch bedienbare zonwering creëert een sfeervolle buitenruimte waar u al vroeg in het seizoen comfortabel kunt verblijven. Achterin de tuin bevindt zich een praktische berging.

De juiste balans
Zandweg 10 biedt een unieke combinatie van landelijke rust, moderne voorzieningen en een instapklare afwerking. Een woning die niet alleen voldoet aan uw woonwensen, maar deze overtreft.

Bent u op zoek naar een exclusieve villa waar u direct kunt genieten? Neem contact op voor een bezichtiging en ervaar zelf de kwaliteit en sfeer van deze bijzondere woning.

Bijzonderheden:
– Oplevering in overleg
– Moderne en luxe woning
– 12 zonnepanelen
– HR++ glas
– Warmtepomp en een warmteterugwinningssysteem
– Werkkamer op de begane grond

WoonhuisKenmerken

Overdracht

Status
Beschikbaar
Koopprijs
€ 1.065.000,- k.k.
Aanvaarding
In overleg

Bouwvorm

Objecttype
Woonhuis
Soort
Villa
Type
Vrijstaande woning
Bouwjaar
2021
Bouwvorm
Bestaande bouw
Liggingen
Aan rustige weg

Indeling

Woonoppervlakte
216 m2
Perceel oppervlakte
1.045 m2
Totale kadestrale oppervlakte
1.045 m2
Gebruiksoppervlakte overige functies
21 m2
Inhoud
930 m3
Aantal kamers
5
Aantal slaapkamers
3

Energie

Energieklasse
A++
Energielabel einddatum
15 september 2035
Isolatievormen
Dakisolatie, Muurisolatie, Vloerisolatie, Dubbelglas, HR glas
Soorten warm water
Elektrische boiler eigendom
Soorten verwarming
Vloerverwarming gedeeltelijk, Warmtepomp, Warmte terugwininstallatie
CV ketel combiketel
Nee

Ik heb interesseNeem contact met mij op

Als u hier uw gegevens achterlaat, dan nemen wij contact met u op om u meer te vertellen over deze woning.

    Contactgegevens

    Naam*

    Mobiel

    E-mailadres*

    Inside information

    Ik kan u alles over deze woning vertellen

    Bel Jaap op
    06 27 00 82 66