De Boomstam

Koopprijs
€ 463.995,-
Objecttype
Woonhuis
Woonhuissoort
Eengezinswoning
Woonhuistype
Tussenwoning

Menheerse Erf | De buurt van nu! 

Elke woensdag van 13:00 tot 15:00 uur ben je van harte welkom op onze inloopmiddag m.b.t. het nieuwbouwproject Menheerse Erf op ons kantoor in Middelharnis. Loop geheel vrijblijvend binnen. 

Op een prachtige landelijke locatie in Middelharnis wordt een nieuwe, levensloopbestendige buurt voor jong en oud gecreëerd; ‘Menheerse Erf’. Op Menheerse Erf komt een combinatie van wonen, welzijn en zorg.

De woningen | Fase 1

In de eerste fase worden verschillende woningtypes aangeboden in drie verschillende bouwblokken. Woningtypen die perfect aansluiten bij de behoeften van verschillende levensfasen. Of je nu een jong gezin hebt, een starter bent, een ‘empty nester’ of een senior die op zoek is naar comfort en gemak, Meheerse Erf heeft voor ieder wat wils.

Rijwoningen | Vanaf € 419.950,- v.o.n. 

Rijwoningen met ruime slaapkamers en autoluwe erfjes waar kinderen veilig kunnen spelen. Menheerse Erf is de perfecte plek om je gezin te laten opgroeien. De eerste zes rijwoningen (De Klaproos) die beschikbaar komen voor verkoop in de Bloementuin worden in hout gerealiseerd.

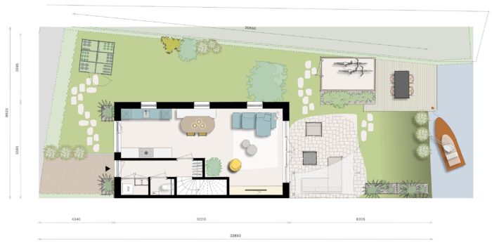
• ca. 123 m² woonoppervlakte met mogelijkheid voor een uitbouw

• 4 kamers (3 slaapkamers)

• Voor- en achtertuin

• Houtbouw of traditionele betonbouw

• 1 privé parkeerplaats in het gebied

Appartementen| Vanaf €349.995,- v.o.n. 

Ben jij op zoek een tof appartement? Of ben je het trappenlopen zat en verlang je naar een wat kleiner, maar toch comfortabel thuis? Dan biedt Menheerse Erf je genoeg keuze. Het appartementencomplex De Madelief bestaat uit 27 appartementen met verschillende groottes. Alle woningen worden voorzien van een houten gevel.

• 69 tot 97 m² woonoppervlakte

• 3 kamers (2 slaapkamers)

• 6 Appartementen met tuin ca. 11 tot 125 m²

• 20 Appartementen met balkon ca. 5 tot 12 m²

Natuurinclusief | Wat is dat nu eigenlijk? En wat houdt het voor jou als bewoner in?

De ontwikkeling van Menheerse Erf veel zorg en aandacht aan de (lokale) flora en fauna. De groene leefomgeving wordt verbeterd en uitgebreid om daarmee de biodiversiteit te versterken. De natuur beschermt ons tegen ziekten, plagen, droogte en extreme weersomstandigheden. Ze fungeert als een opslagplaats voor CO2 en zuivert de lucht die we inademen. De natuur houdt ons hoofd koel, onze koelkast gevuld en onze voeten droog. 

De plek
Menheerse Erf bevindt zich in Middelharnis. Middelharnis heeft een rijke geschiedenis, oorspronkelijk als vissersdorp, en heeft zich ontwikkeld tot een dorp met een historisch charmant karakter. De omgeving biedt natuurlijke schoonheid, uitgebreide watersportmogelijkheden en diverse recreatiemogelijkheden zoals fietsen, wandelen en vogelspotten.

Op 5 minuten fietsafstand vind je het gezellige historische centrum van Middelharnis. Al je dagelijkse boodschappen doe je natuurlijk bij de plaatselijke bakker, slager, groenteboer en supermarkt. Daarnaast zijn er in de buurt diverse kinderdagverblijven, scholen en sportvoorzieningen, waardoor Menheerse Erf een aantrekkelijke woonlocatie is voor jong én oud!

De bushalte vind je op 5 minuten loopafstand. Met de auto sta je binnen 30 minuten in het gezellige Ouddorp. Binnen 45 minuten ben je in Bergen op Zoom, Breda of Rotterdam. De grote steden om de hoek dus!

Disclaimer: Ondanks dat TW3 makelaars/ van Rossum deze aanmelding met grote zorgvuldigheid heeft samengesteld, kunnen geen rechten worden ontleend aan teksten, berekeningen, aanbiedingen evenals aan afgebeelde illustraties en artists-impressions, deze zijn uitsluitend bedoeld als voorbeeld en daardoor niet bindend voor het eindresultaat. Alle informatie, ook prijzen en voorwaarden, kunnen aan verandering onderhevig zijn.

Bouwnummers

Middelharnis – De Boomstam 41 – 41

Middelharnis – De Boomstam 39 – 39

Middelharnis – De Boomstam 37 – 37

Middelharnis – De Boomstam 35 – 35

Middelharnis – De Boomstam 40 – 40

Middelharnis – De Boomstam 38 – 38

Middelharnis – De Boomstam 36 – 36

Middelharnis – De Boomstam 34 – 34