Ooltgensplaat – Galathesedijk 5
3257 LE, Ooltgensplaat
€ 1.375.000,- k.k.
WoonhuisOmschrijving
Deze prachtige vrijstaande woning ligt als een verborgen parel in het groen, omringd door rust en natuur. Hier ervaart u de ultieme vrijheid: ruimte om te ademen, tijd om te genieten en een ontspannen leefritme dat het dagelijkse leven overstijgt. Gebouwd in 2010, straalt het huis charme en karakter uit...
Deze prachtige vrijstaande woning ligt als een verborgen parel in het groen, omringd door rust en natuur. Hier ervaart u de ultieme vrijheid: ruimte om te ademen, tijd om te genieten en een ontspannen leefritme dat het dagelijkse leven overstijgt. Gebouwd in 2010, straalt het huis charme en karakter uit dankzij een klassieke gevel, sfeervolle raampartijen en verfijnde details die een warme, uitnodigende sfeer creëren. Met een kantoor en een badkamer mét sauna op de begane grond, drie slaapkamers en een tweede badkamer op de eerste verdieping, biedt deze woning comfort en gemak voor elke levensstijl. De rondom gelegen tuin, voorzien van een berging en overkapping, garandeert privacy en nodigt uit tot eindeloze momenten in de buitenlucht. Ook voor de watersportliefhebber biedt deze woning een uitzonderlijke ligging. Op korte afstand bevindt zich de Galathese Haven, uitgerust met een dubbele boothelling. Vanuit hier vaart u moeiteloos via het Volkerak het indrukwekkende Hollands Diep op, een vaargebied dat garant staat voor vrijheid, rust en eindeloze mogelijkheden op het water. Uw boot ligt binnen handbereik, eenvoudig te stallen op eigen terrein.
INDELING
Begane grond:
De oprijlaan en toegangspoort geven al een gevoel van allure en vrijheid bij aankomst. Binnen wordt u verwelkomd door een lichte, royale entreehal die toegang biedt tot de woonkamer en het kantoor. De hardstenen vloer met vloerverwarming zorgt voor een aangename basis in het hele huis.
De woonkamer is een plek waar licht en natuur elkaar ontmoeten. Grote raampartijen bieden een fraai uitzicht over de verzorgde tuin, terwijl openslaande deuren de grens tussen binnen en buiten vervagen. Op frisse winterdagen schenkt de houtkachel warmte en sfeer.
De landelijke keuken is ruim, volledig uitgerust en nodigt uit tot gezellig koken en samenkomen. Het Falcon Elan gasfornuis met maar liefst vier ovens is een musthave voor de hobbykok. Via de bijkeuken loopt u gemakkelijk naar het buitenterras, ideaal voor een ontbijt in de ochtendzon of een diner onder de sterren.
Het kantoor, met knusse haard en een zitje, biedt een rustige werkplek, grenzend aan de badkamer met sauna. Hier vindt u een eigen plek voor ontspanning en welzijn, waar u de drukte van alledag moeiteloos achter u laat.
Vanuit de hal is ook een zeer ruime kelder toegankelijk, deze is heerlijk koel en biedt extra opbergruimte.
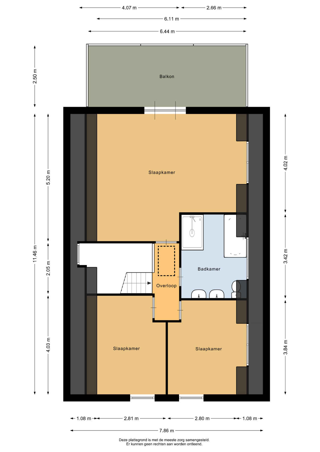
Eerste verdieping:
Op de eerste verdieping wachten drie sfeervolle slaapkamers, perfect voor een gezin of logees. De master bedroom geeft middels openslaande deuren toegang tot het balkon. De royale badkamer voelt als een privéspa: een vrijstaand ligbad om in weg te dromen, een dubbele wastafel, een ruime inloopdouche en een toilet, met vloerverwarming die een behaaglijke intimiteit toevoegt. De gehele eerste verdieping is voorzien van duurzame eikenhouten vloerdelen. Vanaf de overloop leidt een vlizotrap naar de bergzolder.
Tuin, berging & overkapping:
Het perceel van 3.275 m² is een ware buitenoase. De tuin is zorgvuldig aangelegd en biedt volop ruimte voor ontspanning, spel en vrije tijd in de natuur. Hier ervaart u totale privacy en rust, omgeven door groen. Diverse terrassen nodigen uit tot lange zomerse dagen en gezellige avonden. De stenen schuur/garage met de mooie buitenkamer voegt functionaliteit en charme toe, ideaal voor opslag of creatieve projecten. Wanneer de zomer nadert, hangen de volwassen fruitbomen vol vruchten: appels die blinken in het zonlicht, peren die hun elegante vormen tonen, kersen die als kleine juwelen schitteren. Het is alsof de bomen gul hun schatten aanbieden, om je te herinneren aan de overvloed van de natuur.
Bijzonderheden:
– Oplevering in overleg
– Landelijk en rustig gelegen
– Volop privacy
– Zeer royaal perceel met schuur en overkapping
– Voorzien van airconditioning en waterontharder
– Sauna op de begane grond
– Er is een vergunning beschikbaar voor een carport naast de woning
– Op korte afstand van de Galathese Haven, met dubbele boothelling
WoonhuisKenmerken
Overdracht
Bouwvorm
Indeling
Energie
Ik heb interesseNeem contact met mij op
Als u hier uw gegevens achterlaat, dan nemen wij contact met u op om u meer te vertellen over deze woning.
Inside information
Ik kan u alles over deze woning vertellen
Bel Albert op
06 30 57 19 38


